Газовый конденсационный отопительный котел Vaillant ecoTEC plus VUW OE 296/3-5 оснащен модулирующей горелкой, с диапазоном мощности от 15% до 100%. В сравнении с неконденсационными газовыми котлами, средний КПД за отопительный сезон у данной модели до 109% при температурном режиме 40/30 °С.
Котлы Vaillant ecoTEC plus VUW OE 296/3-5 оснащены коммуникационной шиной eBus. В процессе горения котел может использовать воздух как из помещения так и снаружи. С помощью пластинчатого теплообменника осуществляется отопление и горячее водоснабжение. Функция Aqua-Power-Plus увеличивает мощность работы котла на 12% для горячего водоснабжения.
Главным плюсом конденсационных котлов Vaillant ecoTEC plus VUW OE 296 в сравнении сгазовыми дымоходными и турбированными котлами является высокая эффективность и экономность, которое достигается путем полного использования теплоты выхлопных газов и конденсации водных паров. Экономия газа достигает 45%!

Раздельный теплообменник котла Вайлант 25 кВт ЕкоТек Плюс обеспечит максимальный комфорт ГВС и надежность при жесткой воде! Данный котел имеет повышенную мощность в режиме ГВС. Производительности хватит для одновременной работе 2-4 точек разбора воды
Конденсационный теплообменник и горелка Radial Inox - это сердце котла VAILLANT ecoTEC plus VUW OE 296/3-3. Именно они обеспечивают полное сгорание газа, охладжение газов сгорание и конденсацию воды, которая образуется при сгорании газа. Именно такой теплообменник и горелка обеспечивают колосальный КПД конденсационного котла Vaillant.
Экономия газа: Благодаря наивысшему КПД и той особенности, что котел наиболее эффективен на небольшой мощности, на которой КПД других котлов падает, а средняя температура отопительного сезона +1оС, экономия газа достигает от 29% до 45% в зависимости от отопительной системы, температуры внешней и в доме!
Максимальная эффективность сгорания газа достигается принудительным всасыванием газа и глубокой модуляцией как инжектора, так и нагнетателя воздуха. Газовоздушная смесь всегда имеет самый оптимальный состав.
Стоит заметить, что конденсационный котел достигает наивысшего КПД при отоплении именно теплым полом, ведь температура обратной подачи контура отопления должна быть минимальна.
Стоит отметить, что при помощи уникальной системы Aqua-Kondens при подогреве воды для ГВС может так же использоваться конденсационное тепло.
Компания Vaillant выполняет самый качественный сервис в Украине! Огромный склад запчастей по самым низким ценам, полный спектр деталей к котлам. Однако, надежность котлов Vaillant ecoTEC plus VUW OE 296/3-5 делает этот факт не таким уж важным.
Купить Vaillant ecoTEC plus VUW OE 296/3-3 можно в нашем интернет магазине Waterstore, конденсационный котел Вайлант екотек плюс всегда есть на нашем складе в Киеве. Высокая эффективность, оптимальная мощность для небольших и средних домов делают конденсационный котел ecoTEC plus VUW OE постоянно востребованным и популярным.
Компания Vaillant – это передовой производитель отопительного оборудования в мире! 140 лет лидерства на рынке, наивысшее немецкое качество, миллионы довольных клиентов, качественный сервис, это все Vaillant. Купить котел Vaillant ecoTEC plus VUW OE 296/3-3 это прекрасное решение, которое будет радовать Вас на протяжении многих лет, поможет сберечь природу и огоромную сумму средств благодаря экономии газа!


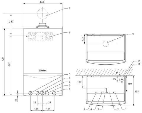
| 1. Обратная магистраль контура отопления 2. Вход холодной воды 3. Подключение газопровода 4. Выход горячей воды 5. Подающая магистраль контура отопления |
6. Кронштейн для крепления на стену 7. Проход коаксиального дымохода через стену 8. Подключение коаксиального дымохода 9. Патрубок отвода конденсата 10. Патрубок предохранительного клапана |
Установка газового котла Vaillant ecoTEC plus VUW OE 296/3-5 с комнатным термостатом позволит экономить до 15% газа ежегодно в дополнение к 20-45% экономии благодаря конденсационному теплообменнику и полностью избавит вас от необходимости ежедневной настройки котла! Общая экономия благодаря комплекту газовый котел + термостат будет достигать до 60% газа!
Комнатный термостат поддерживает идеальную температуру в доме, исключает перегрев и недогрев помещения, Вам не нужно будет ежедневно регулировать температуру с помощью регулятора котла, также термостат увеличит ресурс конденсационного котла Вайлант Плюс ОЕ 25 кВт.
Оплата доставки здійснюється за рахунок покупця.
Оплата товару може здійснюватися різними методами за бажанням покупця:
Компанія ТОВ «ВОТЕР ІНЖИНІРІНГ» здійснює гарантійне та післягарантійне обслуговування обладнання для басейнів, ставків, аквапарків, опалювального обладнання.
Для виконання гарантійного ремонту та обслуговування повинні бути дотримані такі умови:
Для запуску процесу гарантійного обслуговування необхідно виконати такі дії:
Для більш детальної інформації пройдіть за посиланням.