Одноконтурный конденсационный котел Vaillant ecoVIT exclusiv VKK INT 476/4 способен отапливать помещение с тепловой мощностью до 47 кВт. В качестве топлива в котле используется природный газ. Для процесса горения забор воздуха происходит из помещения и снаружи. Горелка котла Vaillant ecoVIT exclusiv VKK INT 476/4 изготовлена с камерой предварительно-принудительного смешивания.
Розжиг котла электронный, а также отопительный агрегат оснащен двумя обратными линиями системы отопления. Теплообменник данной модели котла выполнен в большом объеме (85 л)
Мощность котла Vaillant ecoVIT exclusiv VKK INT 476/4 регулируется плавно с помощью модулируемой горелки (диапазон модуляции 35%-100%). Данный отопительный аппарат способен также готовить горячую воду, при условии подключения бойлера. В режиме отопления и горячего водоснабжения газовый котел может работать с частичной мощностью.
В газовом конденсационном котле установлена функция Aqua-Condens-System, с помощью которой емкостный нагреватель для нагрева воды использует скрытую теплоту конденсации. Показатель КПД данной модели котла очень высокий, и при режиме температур в 40/30 °С, он достигает отметки 109%.

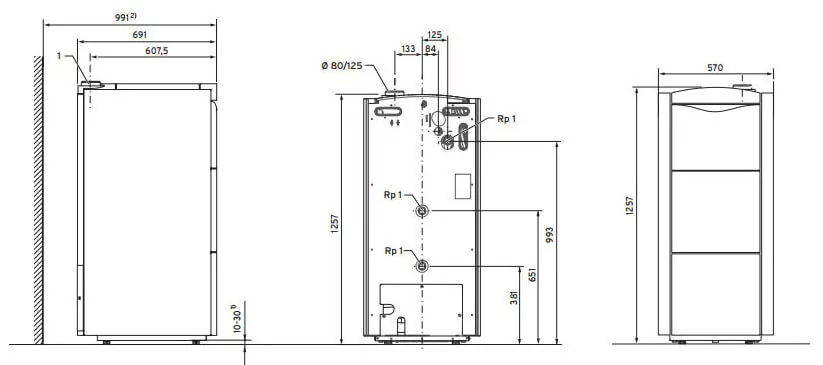
Подключение газопровода
Подающая магистраль контура отопления
Обратная магистраль контура нагрева бойлера
Обратная магистраль контура отопления
Патрубок отвода конденсата
Подключение коаксиального дымохода
Оплата доставки здійснюється за рахунок покупця.
Оплата товару може здійснюватися різними методами за бажанням покупця:
Компанія ТОВ «ВОТЕР ІНЖИНІРІНГ» здійснює гарантійне та післягарантійне обслуговування обладнання для басейнів, ставків, аквапарків, опалювального обладнання.
Для виконання гарантійного ремонту та обслуговування повинні бути дотримані такі умови:
Для запуску процесу гарантійного обслуговування необхідно виконати такі дії:
Для більш детальної інформації пройдіть за посиланням.