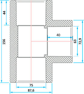
Тройник 90° редукционный производителя ERA характеризуется высокой химической стойкостью и гладкой поверхностью.
Изготовлены фитинги из поливинилхлорида – PVC, что делает их пригодными и безопасными для использования не только для обвязки бассейнов, но и для снабжения питьевой водой и пищевыми продуктами в промышленных целях. Также данный материал характеризуется биологической инертностью, не создавая благоприятные условия для размножений бактерий. Рабочая температура от 0°C до +40°C.
Соединить тройник 90° редукционный ERA можно при помощи специального клея (химическая, холодная сварка).

Оплата доставки здійснюється за рахунок покупця.
Оплата товару може здійснюватися різними методами за бажанням покупця:
Компанія ТОВ «ВОТЕР ІНЖИНІРІНГ» здійснює гарантійне та післягарантійне обслуговування обладнання для басейнів, ставків, аквапарків, опалювального обладнання.
Для виконання гарантійного ремонту та обслуговування повинні бути дотримані такі умови:
Для запуску процесу гарантійного обслуговування необхідно виконати такі дії:
Для більш детальної інформації пройдіть за посиланням.