Настенный отопительный газовый одноконтурный (только отопление) конденсационный котел мощностью 44 кВт, чего достаточно для отопления помещения в 390-500 кв.м. При подключении к нему емкостного водонагревателя можно получать горячую воду для ГВС
Отопительный котел широко известной как в Европе, так и в Украине торговой марки Vaillant линейки ecoTEC plus VU OE 486/5-5 H все быстрее набирает популярности среди других аналоговых отопительных аппаратов благодаря высокой эффективности и немецкой надежности.
Конденсационные котлы используют тепло содержащихся в продуктах сгорания водяных паров, что позволяет потребителю значительно уменьшить затраты на топливо.

Для работы котла забор воздуха для горения может осуществляться из самого помещения и снаружи. При помощи установленной модулируемой горелке можно регулировать мощность работы котла в диапазоне от 28 до 100%. КПД таких котлов значительно превышает номинальный коэффициент полезного действия других неконденсационных котлов.
Во всех котлах Vaillant ecoTEC plus VU OE 466/4-5 встроен насос для системы отопления с частотной регулировкой, а так же встроено устройство-автомат для отвода воздуха. Аппарат оборудован конденсационным теплообменником, изготовленным из высокопрочной нержавеющей стали.

Помимо всего вышеперечисленного, в отопительных котлах Vaillant ecoTEC plus VU OE 466/4-5 H предусмотрен контроль за процессом горения и электронное зажигание.
Стоит отметить, что для котлов линейки ecoTEC plus VU OE является обязательным применение гидравлического разделителя в системе отопления.

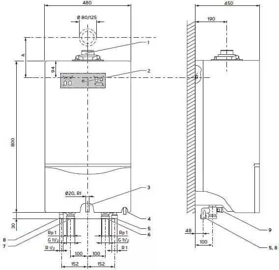
1. Подключение коаксиального дымохода
2. Кронштейн для крепления на стену
3. Подключение газопровода
4. Патрубок отвода конденсата
5. Патрубок расширительного бака6. Обратная магистраль контура отолени
7. Подающая магистраль контура отопления
8. Патрубок предохранительного клапана
9. Штуцер для заполнения и слива
Оплата доставки здійснюється за рахунок покупця.
Оплата товару може здійснюватися різними методами за бажанням покупця:
Компанія ТОВ «ВОТЕР ІНЖИНІРІНГ» здійснює гарантійне та післягарантійне обслуговування обладнання для басейнів, ставків, аквапарків, опалювального обладнання.
Для виконання гарантійного ремонту та обслуговування повинні бути дотримані такі умови:
Для запуску процесу гарантійного обслуговування необхідно виконати такі дії:
Для більш детальної інформації пройдіть за посиланням.