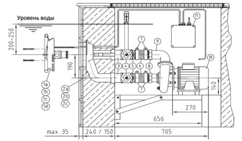
Система устройства встречного течения FitStar Taifun DUO представляет собой устройство, при помощи которого в вашем бассейне образуется искусственное течение.
Противоток подойдет каждому члены семьи, так как в нем можно регулировать мощность потока воды при помощи пневмокнопки.



Оплата доставки здійснюється за рахунок покупця.
Оплата товару може здійснюватися різними методами за бажанням покупця:
Компанія ТОВ «ВОТЕР ІНЖИНІРІНГ» здійснює гарантійне та післягарантійне обслуговування обладнання для басейнів, ставків, аквапарків, опалювального обладнання.
Для виконання гарантійного ремонту та обслуговування повинні бути дотримані такі умови:
Для запуску процесу гарантійного обслуговування необхідно виконати такі дії:
Для більш детальної інформації пройдіть за посиланням.