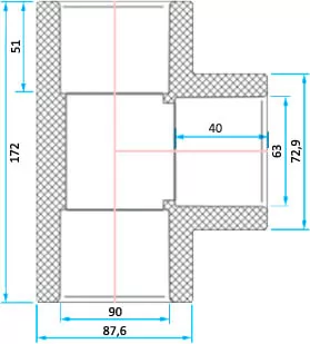
Трійник 90° редукційний виробника ERA характеризується високою хімічною стійкістю та гладкою поверхнею. продуктами у промислових цілях. Також цей матеріал характеризується біологічною інертністю, не створюючи сприятливі умови для розмноження бактерій. Робоча температура від 0°C до +40°C.
З'єднати трійник 90° редукційний ERA можна за допомогою спеціального клею (хімічне, холодне зварювання).

Оплата доставки здійснюється за рахунок покупця.
Оплата товару може здійснюватися різними методами за бажанням покупця:
Компанія ТОВ «ВОТЕР ІНЖИНІРІНГ» здійснює гарантійне та післягарантійне обслуговування обладнання для басейнів, ставків, аквапарків, опалювального обладнання.
Для виконання гарантійного ремонту та обслуговування повинні бути дотримані такі умови:
Для запуску процесу гарантійного обслуговування необхідно виконати такі дії:
Для більш детальної інформації пройдіть за посиланням.